Eco Village
Eco Village là dự án của chủ đầu tư Phúc Khang đã triển khai xây dựng dự án cùng với sự phối hợp của các đơn vị tư vấn thiết kế TDL (Pháp) giúp kiến tạo nên những ngôi nhà thân thiện với môi trường, giúp tiết kiệm năng lượng từ việc tận dụng tối đa ánh sáng, nắng và gió tự nhiên.
Không gian sống xanh của dự án được đánh giá cao khi được bao bọc bởi kênh Xáng và kênh An Hạ đã đưa lượng lớn nước từ sông Vàm Cỏ về với dự án giúp gia tăng cảnh quan xanh mát của sông nước hữu tình cùng hệ thống giao thông đường thuỷ giúp kết nối tới các vùng trong khu vực.


Tổng quan DỰ ÁN
- Dự án: Eco Village Đức Hòa
- Vị trí: Mặt tiền Tỉnh lộ 10 – Đức Hòa – Long An
- Chủ đầu tư: Công ty Cổ Phần Đầu Tư và Xây Dựng Phúc Khang
- Tổng diện tích: 95ha
- Loại hình đầu tư: Đất nền nhà phố, biệt thự
- – Diện tích đất ở: 40ha
- – Đất công trình công cộng: 4.7ha
- – Đất cây xanh và mặt nước: 26.6ha
- – Đất giao thông: 23.4ha
- Diện tích sản phẩm:
- Nhà liền kề: 80 – 117m2
- Biệt thự: 170 – 450m2
- Pháp lý: Sổ hồng
- Sở hữu: lâu dài với khách Việt Nam và 50 năm với khách nước ngoài
- Bàn giao: Tháng 7/2015
ĐỂ TIẾT KIỆM THỜI GIAN TÌM HIỂU
Eco Village
Quý anh chị vui lòng điền đầy đủ và chính xác thông tin bên dưới và click đăng ký để nhận ngay trọn bộ thông tin Eco Village qua SĐT/ZALO/VIBER, hoặc liên hệ Hotline để tư vấn trực tiếp:
0911.497.556
Vị trí TỌA LẠC ĐẮC ĐỊA
Eco Village có vị trí toạ lạc ngay cạnh cửa ngõ giao thương của thành phố Hồ Chí Minh, nơi đây chính là mặt tiền của Tỉnh lộ 10 giúp kết nối giữa Đức Hoà và quốc lộ 1A. Ngoài ra, dự án còn nằm ngay liền kề đường Vành Đai 3 giúp cho cư dân dễ dàng di chuyển nhanh chóng tới khu trung tâm của thành phố qua vòng xoay Phú Lâm cũng như từ đại lộ Đông Tây.

Tiện ích xứng tầm
Eco Village được trang bị hội tụ hàng loạt tiện ích dịch vụ nội -ngoại khu đẳng cấp giúp đáp ứng mọi nhu cầu tiện nghi, đầy đủ của mọi cư dân về mọi mặt.
ĐĂNG KÝ NHẬN BẢNG GIÁ & CHÍNH SÁCH
MỚI NHẤT TẠI ĐÂY!
Bảng giá tháng 09/2024
Hồ sơ pháp lý
Chính sách bán hàng
MẶT BẰNG TỔNG THỂ
Dự án Eco Village có tổng diện tích rộng 950.000 m2 đã được quy hoạch trở thành địa chỉ của các nhà đầu tư về dịch vụ – du lịch nghỉ dưỡng nhắm tới. Nơi toạ lạc của dự án nằm ngay tại trục đường tỉnh lộ 10 – Đức Hoà – Long An hình thành nơi an cư và kênh đầu tư mới mẻ.
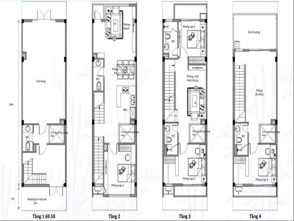
Mặt bằng chi tiết Eco Village Đức Hoà Long An
Dự án đem lại cho khách hàng cơ hội sở hữu các sản phẩm với thiết kế chi tiết diện tích từng sản phẩm đa dạng khác nhau, được thiết kế theo xu hướng xanh rộng mở giúp đón nắng và gió tự nhiên tốt nhất.
Diện tích các sản phẩm như sau:
- Biệt thự ven hồ: 170-450 m2
- Nhà liền kề: 80 – 117m2

Kiến trúc THIẾT KẾ ẤN TƯỢNG
Chủ đầu tư và các kiến trúc sư đã cho ra những sản phẩm nhà ở đáp ứng nhu cầu về tiết kiệm năng lượng, thân thiện cùng môi trường. Với diện tích đa dạng khác nhau nên khách hàng dễ dàng sở hữu các nền đất và triển khai xây dựng theo sở thích của mình.
Hình ảnh nội thất
Đồ nội thất được chủ đầu tư bố trí trang bị trong ngôi nhà của dự án đều là các thương hiệu cao cấp. Từ đó giúp cho không gian ngôi nhà tối ưu hoá không gian sống. Đặc biệt là được trau chuốt tinh tế trong từng chi tiết nhỏ nhất.
Khám phá nội thất bàn giao cao cấp
Nội thất phòng ngủ

Nội thất phòng khách

CHÍNH SÁCH BÁN HÀNG
GIÁ BÁN
Dự án Eco Village Đức Hòa có mức giá bán dao động nằm trong khoảng từ 16 – 20 triệu đồng/m2. Các sản phẩm của dự án được hình thành với sự kết hợp giữa KĐT hiện đại và khu sinh thái nghỉ dưỡng độc đáo. Nhờ vậy mà dự án trở thành nơi an cư cũng như đầu tư lý tưởng, dài hạn.

* Quý anh chị vui lòng để lại thông tin để nhận ngay bảng giá từ chủ đầu tư
ĐỂ TIẾT KIỆM THỜI GIAN TÌM HIỂU
Eco Village
Quý anh chị vui lòng điền đầy đủ và chính xác thông tin bên dưới và click đăng ký để nhận ngay trọn bộ thông tin Eco Village qua SĐT/ZALO/VIBER, hoặc liên hệ Hotline để tư vấn trực tiếp:
0911.497.556
Sản phẩm mở bán Eco Village Phát Đạt
Lý do nên chọn Eco Village
Eco Village Đức Hoà hội tụ các ưu thế trở thành nơi an cư, kênh đầu tư mới mẻ tại khu vực Long An
Đón đầu hạ tầng
Vị trí chiến lược
Hạ tầng đồng bộ
CĐT uy tín
Thủ tục hoàn thiện
Giá bán hấp dẫn
Đa dạng loại hình
Tiềm năng sinh lời
Eco Village Long An
Dự án Eco Village Đức Hòa có vị trí toạ lạc tại đâu?
Chủ đầu tư của dự án là ai?
Quy mô triển khai dự án như thế nào?
Diện tích các sản phẩm của dự án ra sao?
Caraworld Cam Ranh
108m2 - 550m2
2-4
1-3
- từ 2 tỷ
- Xem thêm
GRAN MELIA NHA TRANG
337m2 – 1426m2
1-4
1-3
- Từ 31 tỷ
- Xem thêm
LIBERA NHA TRANG
30 - 65 m2
Studio - 2 PN
1 - 2 WC
- Từ 1.199 tỷ/căn
- Xem thêm
EATON PARK THỦ ĐỨC
38m²-98m²
1-3
1-2
- từ 3.8 tỷ đồng
- Xem thêm
Eco Village Saigon River
198 – 420 m2
1-4
1-3
- từ 25 tỷ
- Xem thêm
VINHOMES GRAND PARK
30 – 101 m2
1-3PN
1-2WC
- Từ 1.8 - 6.8 tỷ
- Xem thêm




















