Lựa chọn bản vẽ nhà 2 tầng phù hợp với nhu cầu và sở thích?

Mọi quá trình xây dựng nhà ở đều cần đến các bản vẽ để đảm bảo tính chính xác và hiệu quả. Do đó, bản vẽ nhà 2 tầng đang là từ khóa được nhiều người tìm kiếm trong thời gian gần đây. Hãy cùng RICH STAR LAND tìm hiểu chi tiết về mẫu bản vẽ này để giúp quá trình thi công nhà ở của bạn trở nên đơn giản và dễ dàng hơn.
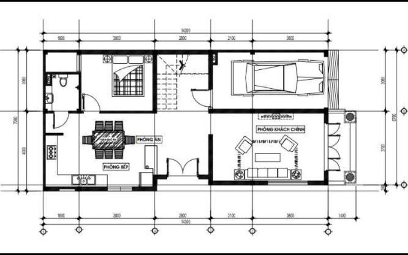
Bản vẽ nhà 2 tầng hiện đại

Một điểm đặc biệt của ngôi nhà là sự sử dụng đa dạng mảng xanh, giúp lọc không khí và tạo ra một môi trường trong lành hơn, đảm bảo sức khỏe cho tất cả các thành viên trong gia đình.
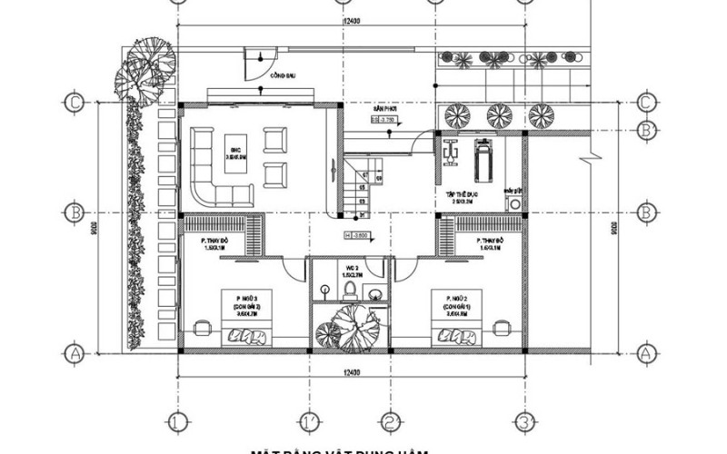
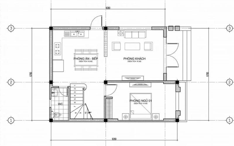
Bản vẽ mặt bằng nhà 2 tầng 70m2

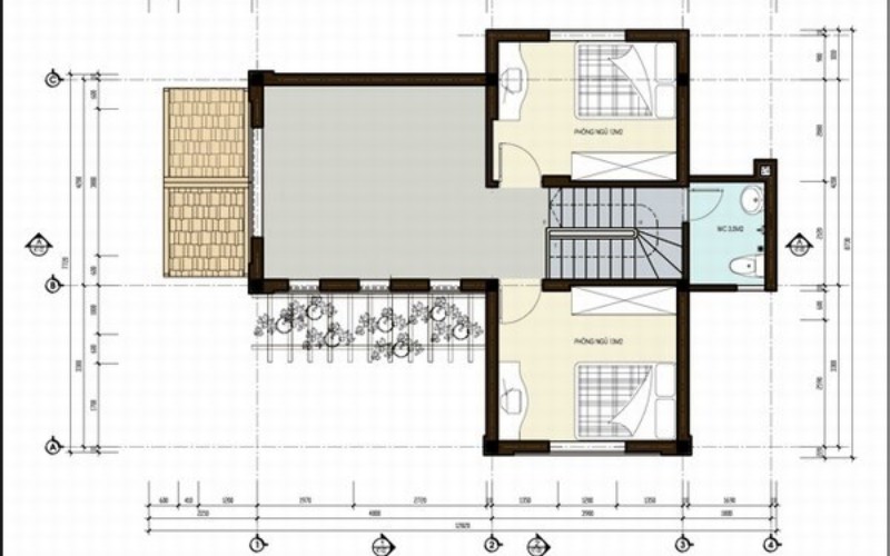
Bản vẽ tầng 2 nhà 2 tầng 70m2
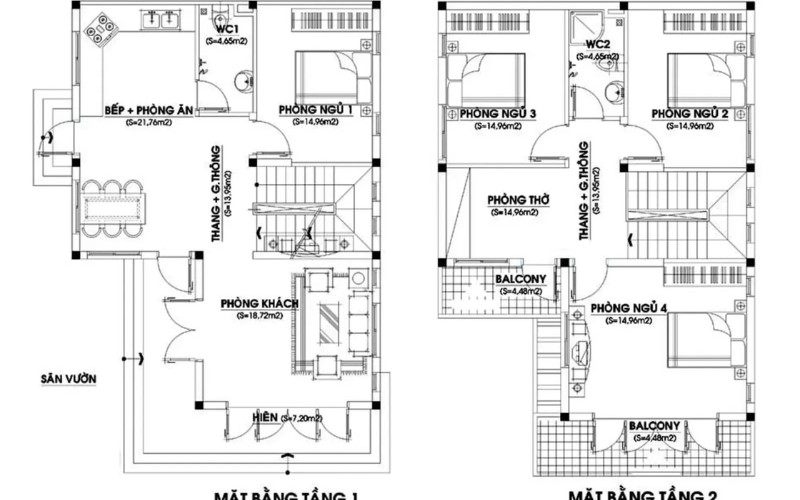
Tầng 2 được lên kế hoạch với hai phòng ngủ: một phòng ngủ có ban công thoáng đãng, dành cho phụ huynh, và một phòng ngủ dành cho con cái.
Bản vẽ nhà 2 tầng mái Thái
Mẫu bản vẽ của ngôi nhà ống 2 tầng đã trở nên sang trọng và ấn tượng hơn nhờ sự kết hợp với kiểu mái Thái. Hãy cùng nhau khám phá vài ý tưởng thiết kế thú vị dưới đây!
Bản vẽ nhà 2 tầng mái Nhật
Thi công mái Nhật sẽ làm cho ngôi nhà của bạn trở nên tinh tế và đẹp mắt hơn. Dưới đây là một số bản vẽ nhà 2 tầng với mái Nhật mà bạn có thể tham khảo!
Bản vẽ nhà ống 2 tầng
Ngôi nhà ống 2 tầng được thiết kế với đầy đủ tiện nghi, hoàn toàn đáp ứng các nhu cầu thực tế của khách hàng về một không gian sống lý tưởng. Dưới đây là một số bản vẽ mà chúng tôi đã tổng hợp được.
Bản vẽ nhà 2 tầng có gara ô tô
Thiết kế nhà ống 2 tầng với gara ô tô là lựa chọn phù hợp cho mọi gia đình. Hãy cùng khám phá một số ý tưởng dưới đây!
Bản vẽ nhà 2 tầng 5x18m 4 phòng ngủ
Với diện tích xây dựng 5x18m, mẫu nhà ống 2 tầng 4 phòng ngủ vẫn hoàn toàn đáp ứng được mọi nhu cầu cần thiết. Dưới đây là một số thiết kế mà bạn có thể tham khảo!

Bản vẽ nhà 2 tầng 6x12m 3 phòng ngủ
Mẫu nhà 2 tầng 6x12m với 3 phòng ngủ là một lựa chọn tuyệt vời cho các gia đình có từ 4 thành viên trở lên. Không chỉ tối ưu hóa diện tích xây dựng mà còn giúp giảm áp lực tài chính cho gia đình. Hãy cùng nhau xem qua một số mẫu thiết kế dưới đây!
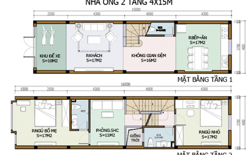
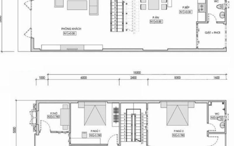
Bản vẽ nhà 2 tầng 4×15 m

Tầng trệt bao gồm các phòng chức năng cơ bản như phòng khách, bếp ăn và nhà vệ sinh. Tầng 2 sẽ có hai phòng ngủ, một phòng lớn với ban công dành cho phụ huynh và một phòng nhỏ hơn ở phía cuối nhà dành cho trẻ nhỏ. Bên cạnh đó, còn có khu vực đặt phòng đọc sách, giếng trời và cầu thang.
Bản vẽ nhà 2 tầng 5×15
Mẫu nhà này có diện tích tương đối rộng rãi, chiều dài tương đối dài nên giúp cho ngôi nhà thêm thoáng đãng, có thể bố trí ga ra ô tô ở đằng trước hoặc cổng trước cho ngôi nhà.


Bản vẽ nhà 2 tầng 4×14
Mặc dù có thiết kế khá đơn giản, nhưng mẫu nhà này vẫn mang đậm phong cách hiện đại, thu hút sự quan tâm và lựa chọn của nhiều gia đình.

Bản vẽ nhà 2 tầng chữ L sang trọng
Ngôi nhà 2 tầng kiểu chữ L mang đậm dấu ấn của thiết kế hiện đại, được bao quanh bởi hàng rào và cổng đẳng cấp. Thiết kế này thể hiện sự kết hợp giữa tân cổ điển và phong cách hiện đại, với cổng màu đen và hoa văn trắng trên tường tạo điểm nhấn sang trọng và ấn tượng cho ngôi nhà.


Bản vẽ nhà 2 tầng mặt tiền 7m rộng rãi
Mẫu nhà 2 tầng với mặt tiền rộng 7m là một trong những thiết kế được nhiều gia đình yêu thích vì sự hiện đại và tiên tiến. Đặc điểm nổi bật của ngôi nhà là mặt tiền rộng 7m, tạo ra không gian sống rộng rãi và thoáng đãng. Thiết kế kiến trúc hiện đại, sang trọng với sự vững chãi và khỏe khoắn chắc chắn sẽ thu hút nhiều gia đình quan tâm. Nếu bạn quan tâm đến chi tiết của mẫu nhà này, có thể tham khảo bản vẽ dưới đây.
Bản vẽ nhà 2 tầng 3 phòng ngủ tiện nghi
Thiết kế nhà 2 tầng với 3 phòng ngủ là lựa chọn phổ biến của nhiều gia đình hiện nay. Mẫu nhà này được thiết kế để đáp ứng mọi nhu cầu cơ bản của các thành viên trong gia đình. Ba phòng ngủ được phân bố trên cả hai tầng, mang lại sự thuận tiện và linh hoạt trong việc sử dụng không gian. Để biết thông tin chi tiết, bạn có thể tham khảo mẫu bản vẽ dưới đây.
Bản vẽ nhà 2 tầng 4 phòng ngủ hiện đại
Nếu gia đình bạn có nhiều thành viên, mẫu nhà 2 tầng với 4 phòng ngủ sẽ là sự lựa chọn tối ưu nhất. Thiết kế này không chỉ giúp tiết kiệm chi phí mà còn mang lại sự thoải mái và tiện nghi cho mọi thành viên trong gia đình. Hãy tham khảo mẫu bản vẽ nhà 2 tầng 4 phòng ngủ đang được ưa chuộng nhất hiện nay.
Bản vẽ biệt thự 2 tầng

Tầng trệt của biệt thự có gara rộng để chứa 2 ô tô, phòng khách và phòng bếp được nối liền để tạo ra không gian chung rộng rãi. Tầng này cũng có một phòng ngủ khép kín phù hợp cho người cao tuổi, và nhà vệ sinh chung gần phòng ngủ để tiện sử dụng.
Tầng 2 của biệt thự gồm 3 phòng ngủ lớn, cùng một phòng sinh hoạt chung có thể sử dụng để đọc sách hoặc gắn kết gia đình.
Bản vẽ nhà 2 tầng là yếu tố quan trọng trong quá trình xây dựng, giúp bạn hình dung rõ ràng về kiến trúc, bố trí không gian và các chi tiết kỹ thuật của ngôi nhà. Một bản vẽ chi tiết và chính xác sẽ đảm bảo quá trình thi công diễn ra suôn sẻ, tiết kiệm thời gian và chi phí.
Hy vọng những thông tin trong bài viết sẽ giúp bạn hiểu rõ hơn về tầm quan trọng của bản vẽ nhà 2 tầng, đồng thời cung cấp những gợi ý hữu ích để bạn có thể lên kế hoạch xây dựng ngôi nhà mơ ước một cách hiệu quả. Nếu bạn muốn tìm hiểu thêm về các thông tin tương tự, đừng ngần ngại truy cập batdongsan24h.vn hoặc liên hệ trực tiếp để được hỗ trợ qua các cách thức liên lạc sau:
- Hotline: 0911.497.556
- Email: info@richstarland.com
- Địa chỉ: Số 167B Đường 339, Phường Phước Long B, Thành phố Thủ Đức, Thành phố Hồ Chí Minh, Việt Nam

Tôn chỉ hoạt động của chúng tôi là sự Uy Tín – Chân Thành – Tận Tâm – “YOUR HAPPINESS IS OUR MISSION”

Bản vẽ nhà 2 tầng mái Thái
Bản vẽ nhà 2 tầng mái Nhật
Bản vẽ nhà ống 2 tầng
Bản vẽ nhà 2 tầng có gara ô tô
Bản vẽ nhà 2 tầng 5x18m 4 phòng ngủ
Bản vẽ nhà 2 tầng 6x12m 3 phòng ngủ
Bản vẽ nhà 2 tầng 4×15 m
Bản vẽ nhà 2 tầng chữ L sang trọng
Bản vẽ nhà 2 tầng mặt tiền 7m rộng rãi
Bản vẽ nhà 2 tầng 3 phòng ngủ tiện nghi
Bản vẽ nhà 2 tầng 4 phòng ngủ hiện đại
Bản vẽ biệt thự 2 tầng

